

預濃縮疊螺污泥脫水機
分類:
- 產品描述
- 技術參數
-
設備優點
預濃縮疊螺污泥脫水機廣泛地運用在各行各業的污泥處理,其技術優勢表現為:
1、該設備是用于污泥直接脫水(濃縮脫水一體機)的疊螺污泥脫水機,處理污泥濃度可為2000mg/L。
2、不堵塞,減少沖洗用水量,節省水費,減少清洗用水造成的內循環負擔。
3、電控柜、絮凝混合槽和脫水主體一體化,減少占地面積,安裝起來簡單方便。
4、脫水機處于封閉作業,且處理穩定、及時,使現場臭氣減少到理想,改善工人的工作環境。
5、實現全自動24小時運行,減少操作工人的勞動強度。
6、螺旋軸運轉速度低,耗電低,現場基本沒有振動和噪音。
7、日常維護時間短,維護作業簡單。
構造原理
脫水主體
疊螺污泥脫水機的脫水主體是由多重固定環和游動環構成,螺旋軸貫穿其中形成的過濾裝置。前段為濃縮部,后段為脫水部,將污泥的濃縮和壓榨脫水工作在一筒內完成,以獨特微妙的濾體模式取代了傳統的濾布和離心的過濾方式。
預濃縮混合系統
預濃縮混合系統主要是由預濃縮系統、攪拌漿葉和濃縮箱體構成。
混合系統主要用于將污泥與藥劑在濃縮箱內進行充分混合,污泥絮凝抱團,同時水從濃縮系統中靠重力過濾一部分,形成礬花的污泥進行入到疊螺主體進行壓榨脫水。在混合槽設有進泥口、溢流口、加藥口和放空口,并設有液位調節裝置,從而可以調節污泥的進給量。
脫水原理
污泥在濃縮段經過重力濃縮后,被輸送到脫水段,在前進的過程中隨著濾縫及螺距的逐漸變小,以及背壓板的阻擋作用下,產生極大壓力,容積不斷縮小,達到充分脫水目的。
產品優勢
1、適用范圍廣泛
能廣泛應用于市政污水、食品、飲料、屠宰養殖、印染、石油化工、造紙、皮革、制藥等各行業的污泥脫水。
獨特的脫水原理,使得設備適用于高、低濃度污泥,從2000mg/L起,開創了低濃度污泥直接脫水的先河。
創新的結構設計,使得設備適用于高、低粘度的各類型污泥,特別是含油污泥,堪稱含油污泥脫水的利器!
2、設備不易堵塞
獨特的動、靜環濾縫結構使得設備不易堵塞,無需為防止濾縫堵塞而進行大量清洗,徹底減少沖洗用水量,減少內循環負擔,解決了傳統脫水設備堵塞給企業帶來的煩惱。
3、連續自動運行
疊螺污泥脫水機從抽出污泥、注入藥液、排出污泥餅均采用自動控制,通過電控柜,與泡藥機、進泥泵、加藥泵等進行聯動,不需人員操作設備,運行不會發生堵塞、濾帶走偏或其他影響工藝安全的現象,日常保養維護簡便,24小時可以連續無人運行。實現了真正意義上污泥脫水連續全自動運行。
4、節省運行費用
一體化的整體設計,設計緊湊,大幅度節省運行費用。低速螺旋擠壓技術,使得耗電量大幅度低;設備不堵塞,沖洗用水大幅度減少;24小時全自動無人運行,人工費大幅度降低。因此,本設備也真正成為符合國家政策的節能環保新型設備。
5、沒有二次污染
螺旋軸的轉速約2~3轉/分,無振動,噪音非常小;其疊片具有自清潔功能,不會發生堵塞問題,只需少量水沖洗,無二次水污染;再加上污泥在如此慢的工作狀態下運行,臭氣不進行擴散,因此創造了一個非常好的運作環境!
6、機體輕巧耐用
由于直接采用機械擠壓脫水,無需滾筒等大型機體,因而該機設計得相當輕巧;機體幾乎全部采用不銹鋼材質,更換部件只有螺旋軸和游動環,使用壽命長,經久耐用。
7、節省工程投資
疊螺污泥脫水機本身具備污泥濃縮功能,直接處理曝氣池內好氧污泥,不需要濃縮及貯存單元,減少污水處理設施整體的占地空間和建設成本。
8、提升除磷功能
污泥在好氧條件下脫水,不會發生傳統污泥濃縮池或貯存池中在缺氧或厭氧條件下的污泥磷釋放,從而提升整個污水處理系統的除磷功能。
-
機型
DS標準處理量
泥水混合物處理量
電機功率(kw)
清洗用水量(L/h)
2500mg/L
5000mg/L
10000mg/L
20000mg/L
驅動電機
攪拌電機
合計
MYEP-Y301
40~70kg/h
~16m3/h
~10m3/h
~7m3/h
~3.5m3/h
0.75
0.75
1.5
40
MYEP-Y302
80~140kg/h
~32m3/h
~20m3/h
~14m3/h
~7m3/h
1.5
1.1
2.6
80
MYEP-Y303
120~210kg/h
~48m3/h
~30m3/h
~21m3/h
~10.5m3/h
2.25
1.1
3.35
120
MYEP-Y304
160~280kg/h
~64m3/h
~40m3/h
~28m3/h
~14m3/h
3
1.1
4.1
160
MYEP-Y351
80~120kg/h
~32m3/h
~16m3/h
~12m3/h
~6m3/h
1.1
1.1
2.2
60
MYEP-Y352
160~240kg/h
~64m3/h
~32m3/h
~24m3/h
~12m3/h
2.2
1.1
3.3
120
MYEP-Y353
240~360kg/h
~96m3/h
~48m3/h
~36m3/h
~18m3/h
3.3
1.5
4.8
180
MYEP-Y354
320~480kg/h
~128m3/h
~64m3/h
~48m3/h
~24m3/h
4.4
1.5
5.9
240
MYEP-Y401
100~160kg/h
~40m3/h
~26m3/h
~16m3/h
~8m3/h
1.5
1.1
2.6
80
MYEP-Y402
200~320kg/h
~80m3/h
~52m3/h
~32m3/h
~16m3/h
3
1.5
4.5
160
MYEP-Y403
300~480kg/h
~120m3/h
~78m3/h
~48m3/h
~24m3/h
4.5
1.5
6
240
MYEP-Y404
400~640kg/h
~160m3/h
~104m3/h
~64m3/h
~32m3/h
6
1.1+1.1
8.2
320
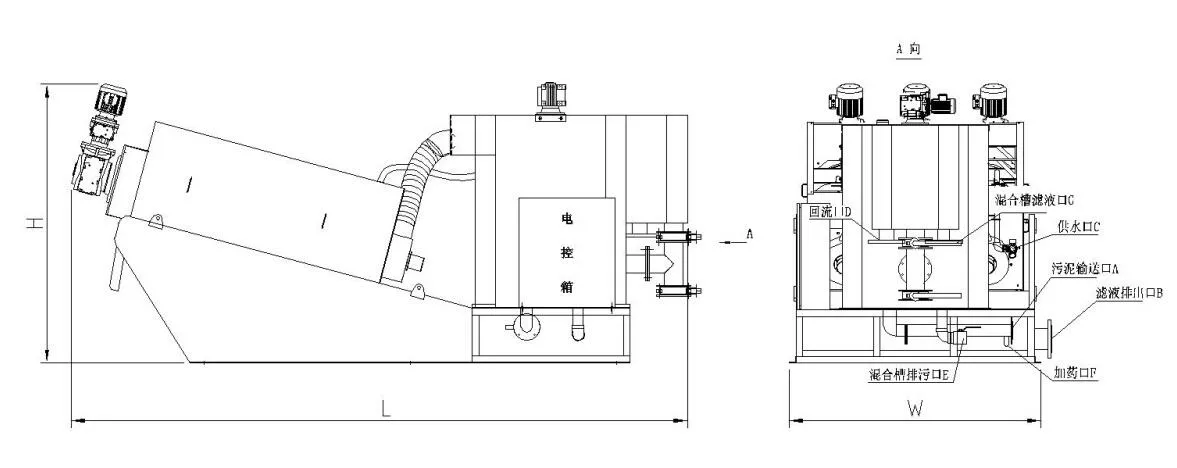
機型
泥餅排出口
離地面距離
(mm)外形尺寸(mm)
污泥輸送口A
濾液排出口B
供水口C
回流口D
混合槽排污口E
加藥口F
預濃縮濾液排出口G
凈重(kg)
運行重量(kg)
長(L)
寬(W)
高(H)
MYEP-Y301
500
4000
1580
1900
DN65
DN150
DN20
DN150
DN65
DN25
DN125
1100
1850
MYEP-Y302
500
4000
1580
1900
DN65
DN150
DN20
DN150
DN65
DN25
DN125
1550
2450
MYEP-Y303
500
4000
1610
1900
DN80
DN150
DN20
DN150
DN65
DN25
DN125
2100
3250
MYEP-Y304
500
4185
2050
1900
DN80
DN150
DN20
DN150
DN65
DN32
DN150
2800
4100
MYEP-Y351
680
4340
1160
2300
DN65
DN150
DN20
DN150
DN65
DN25
DN125
1350
2250
MYEP-Y352
680
4500
1550
2300
DN80
DN150
DN20
DN150
DN65
DN25
DN125
2350
3500
MYEP-Y353
680
4800
2100
2300
DN100
DN150
DN20
DN150
DN65
DN32
DN150
3500
5000
MYEP-Y354
680
5100
2650
2300
DN100
DN200
DN20
DN150
DN65
DN32
DN150
4500
6100
MYEP-Y401
875
5150
1400
2560
DN80
DN150
DN20
DN150
DN65
DN25
DN125
3100
5200
MYEP-Y402
875
5150
1880
2560
DN100
DN150
DN20
DN150
DN65
DN32
DN150
4300
6900
MYEP-Y403
875
5350
2525
2560
DN100
DN200
DN20
DN150
DN65
DN50
DN200
6000
9100
MYEP-Y404
875
5500
3105
2560
DN100
DN200
DN25
DN150
DN65
DN50
DN200
7500
12900
產品詢價